1130 Wien

Winzerstraße 6-8

Wohnen in Ober St. Veit
Miete sofort verfügbar
Typ: Wohnung
Stiege: 1
Stock: 2
Top: 8
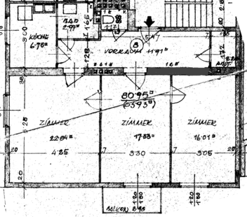
Zimmer: 3
Größe: 83.93m2
Größe: 83.93m2
HWB (kWh/m²/A): 75,10
HWB Klasse: C
fGEE: 2,10
fGEE Klasse: D

Miete

freifinanziert
Kosten: € 20.982,50
Kosten pro Monat: € 1.325,63
Kosten im Detail

Grundrisse

Beschreibung

Wohnen in Ober St. Veit

Helle 3-Zimmer-Wohnung mit Balkon in grüner Ruhelage – 1130 Wien (Hietzing)

Zur Vermietung gelangt eine helle und ruhige 3-Zimmer-Wohnung in der Winzerstraße 6–8, 1130 Wien, gelegen in einer kleinen Wohnhausanlage im Grünen mit ruhigem, begrüntem Innenhof.

Die Wohnung befindet sich im 2. Stock ohne Lift und ist nicht barrierefrei.

Wohnungsdetails

  • 3 Zimmer

  • Getrennte Küche

  • Großzügiger Vorraum

  • Abstellkammer

  • Balkon

  • Kellerabteil (im UG)

  • Fahrradabstellraum (im EG)

  • Laminatboden

  • Baujahr 1957

  • Heizung: Infrarot-Paneele

  • Energieklasse C

  • HWB: 75,10 kWh/m²a


Zustand

Die Wohnung wird unsaniert vermietet.
Bitte beachten Sie insbesondere den Küchenbereich: Die Wände werden nicht gespachtelt oder neu gestrichen (siehe Fotos).

Lage & Verkehrsanbindung

Die Wohnung überzeugt durch ihre ruhige Lage im Grünen bei gleichzeitig guter öffentlicher Anbindung:

  • Autobuslinien 53A und 54A

  • U4 und S-Bahn Wien Hütteldorf

Einkaufsmöglichkeiten sowie Naherholungsgebiete befinden sich in der näheren Umgebung.

Mietverhältnis

  • Unbefristeter Mietvertrag

  • Vermietung direkt durch einen gemeinnützigen Bauträger


Besichtigung & Kontakt

Bei Interesse ist eine Registrierung ausschließlich über die Website erforderlich:
www.oesw.at

Bitte sich für die Wohnung vormerken; die Besichtigungseinladung erfolgt anschließend per E-Mail, die bei der Registrierung eingegeben wurde.

Fragen richten Sie bitte per E-Mail an:
wohnen@oesw.at


Kosten im Detail

Miete

Einmalige Kosten
Grundkosten € 6.294,75
Baukosten € 14.687,75
Finanzierungsbeitrag € 20.982,50
GES. SUMME € 20.982,50
Alle Beträge inkl. Ust.
Monatliche Kosten
Grundmiete (netto) € 987,02
Betriebskosten € 179,83
Verwaltungskosten (netto) € 36,16
Nettomiete € 1.203,01
Ust. Miete € 120,30
Ust. Verwohnung € 2,32
Bruttomiete € 1.325,63
GES. SUMME € 1.325,63
Alle Beträge inkl. Ust.